Mobirise



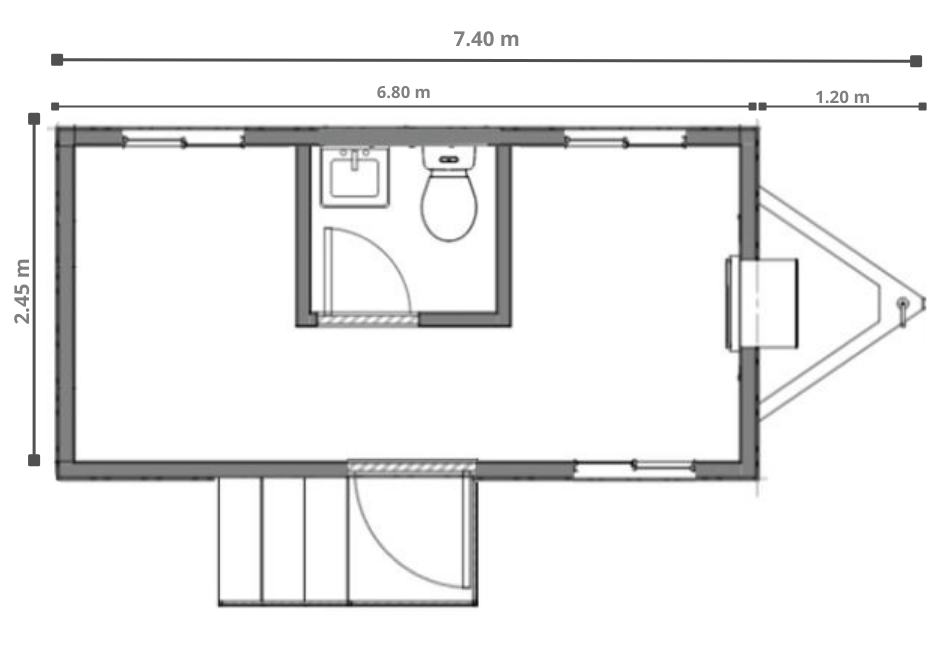
OFICINA 1

2.45 × 6.80 m

Mobirise
Oficinas Móviles Querétaro

-Aislamiento térmico y acústico
-Contacto 110v
-Salida de Voz y Datos
-Conexiones de letrina

✅ Servicio de mantenimiento preventivo
-Aire acondicionado
-Sanitario y lavabo (medio baño)
-Torres y escaleras

Servicio en El Marqués, Querétaro, San Juan del Río, San Miguel de Allende (y alrededores)

AI Website Generator