Oficinas Móviles Querétaro



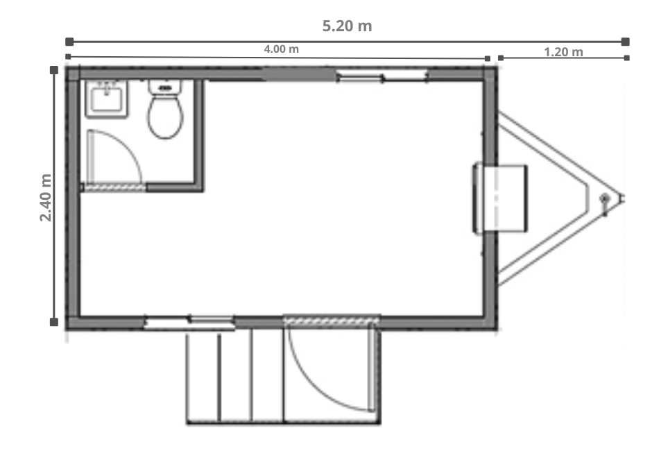
OFICINA 4

2.40 x 4.0 m

Oficinas Móviles Querétaro
Oficinas Móviles Querétaro

-Aislamiento térmico y acústico
-Contacto 110v
-Salida de Voz y Datos
-Conexiones de letrina

Servicio de mantenimiento preventivo
-Aire acondicionado
-Sanitario y lavabo (medio baño)
-Torres y escaleras

Servicio en El Marqués, Querétaro, San Juan del Río, San Miguel de Allende (y alrededores)

AI Website Generator