Mobirise



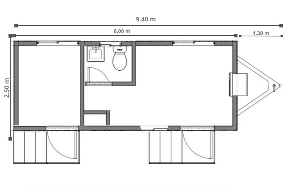
OFICINA 8

2.50 x 8.0 m

Mobirise
Oficinas Móviles Querétaro

-Aislamiento térmico y acústico
-Contacto 220v
-Salida de Voz y Datos
-Conexiones de letrina

Servicio de mantenimiento preventivo
-Aire acondicionado
-Sanitario y lavabo (medio baño)
-Torres y escaleras

Servicio en El Marqués, Querétaro, San Juan del Río, San Miguel de Allende (y alrededores)

No Code Website Builder