Mobirise



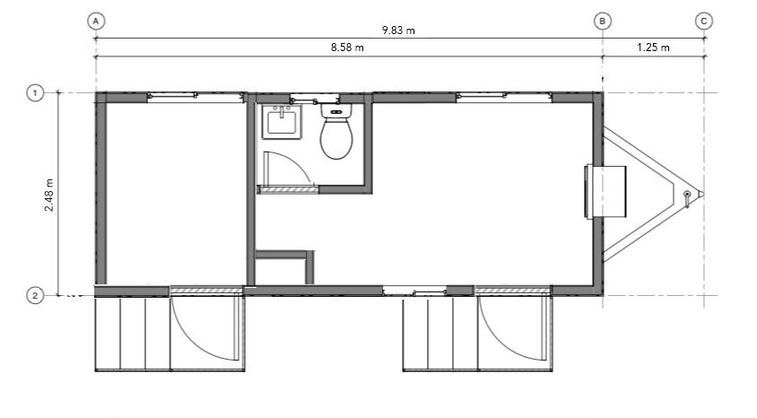
OFICINA 8

2.48 x 9.38 m

Mobirise
Mobirise

-Aislamiento térmico y acústico
-Contacto 220v
-Salida de Voz y Datos
-Conexiones de letrina

-Aire acondicionado
-Sanitario y lavabo (medio baño)
-Torres y escaleras

COTIZADOR

Para saber el precio exacto de la renta favor de contactarnos 

1- 5 MESES 1- 12 MESES
Depósito de garantía$ 10,000$ 9,300
Renta mensual$ 10,000$ 9,300
Seguro mensual$ 350$ 350
Montaje y nivelación$ 500$ 500
Flete (según kms)$ 0.-$ 0.-
Torres y escaleras$ 0.-$ 0.-

Nuestro servicio es únicamente a 60km a la redonda de nuestras instalaciones.

Created with ‌

Mobirise.com