Oficinas móviles Querétaro



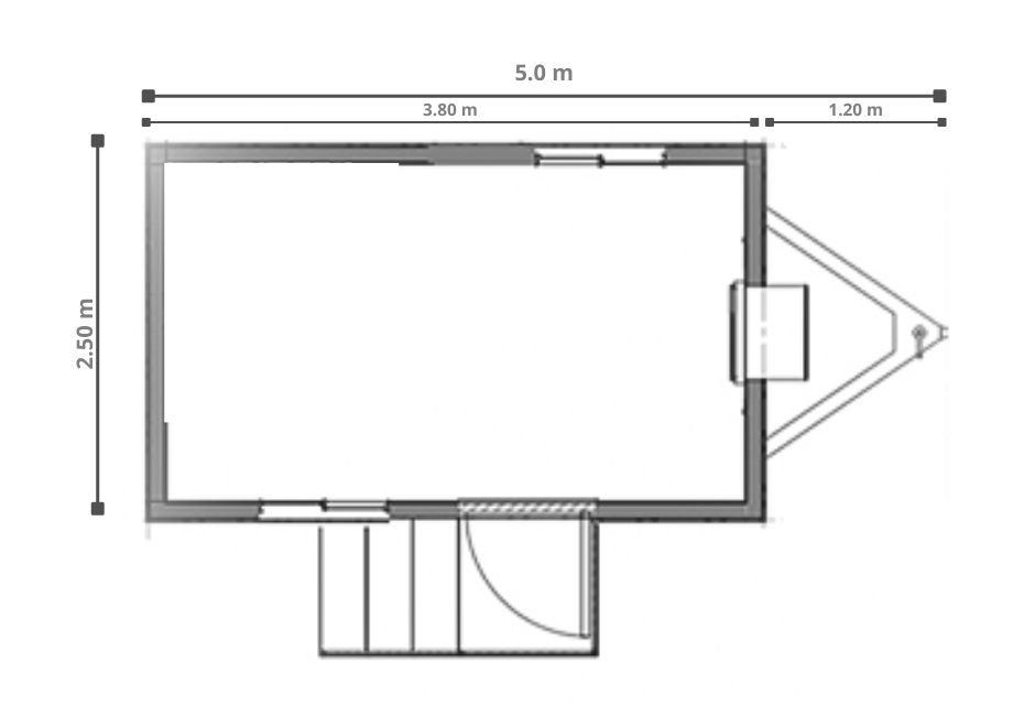
OFICINA 9

2.50 x 3.80m

Oficinas Móviles Querétaro
Oficinas Móviles Querétaro

-Aislamiento térmico y acústico
-Contacto 110v
-Salida de Voz y Datos

Servicio de mantenimiento preventivo
-Aire acondicionado
-Torres y escaleras

Servicio en El Marqués, Querétaro, San Juan del Río, San Miguel de Allende (y alrededores)

HTML Maker